תוכנית אדריכלית מס' DA-8265 |
תוכנית בית מגורים דו משפחתי פונקציונאלי בסגנון מודרני. המבנה עומד על מפלס אחד שטוח. התכנון כולל 3 חדרי שינה לכל יחידת דיור, שמתוכם יחידת הורים.
השטח ברוטו הוא כ-250 מ"ר. האורך המקסימאלי 23.80 מ´, הרוחב המקסימאלי 16.40 מ´.
מתאים למשפחה בינונית או לזוג עם ילדים גדולים.
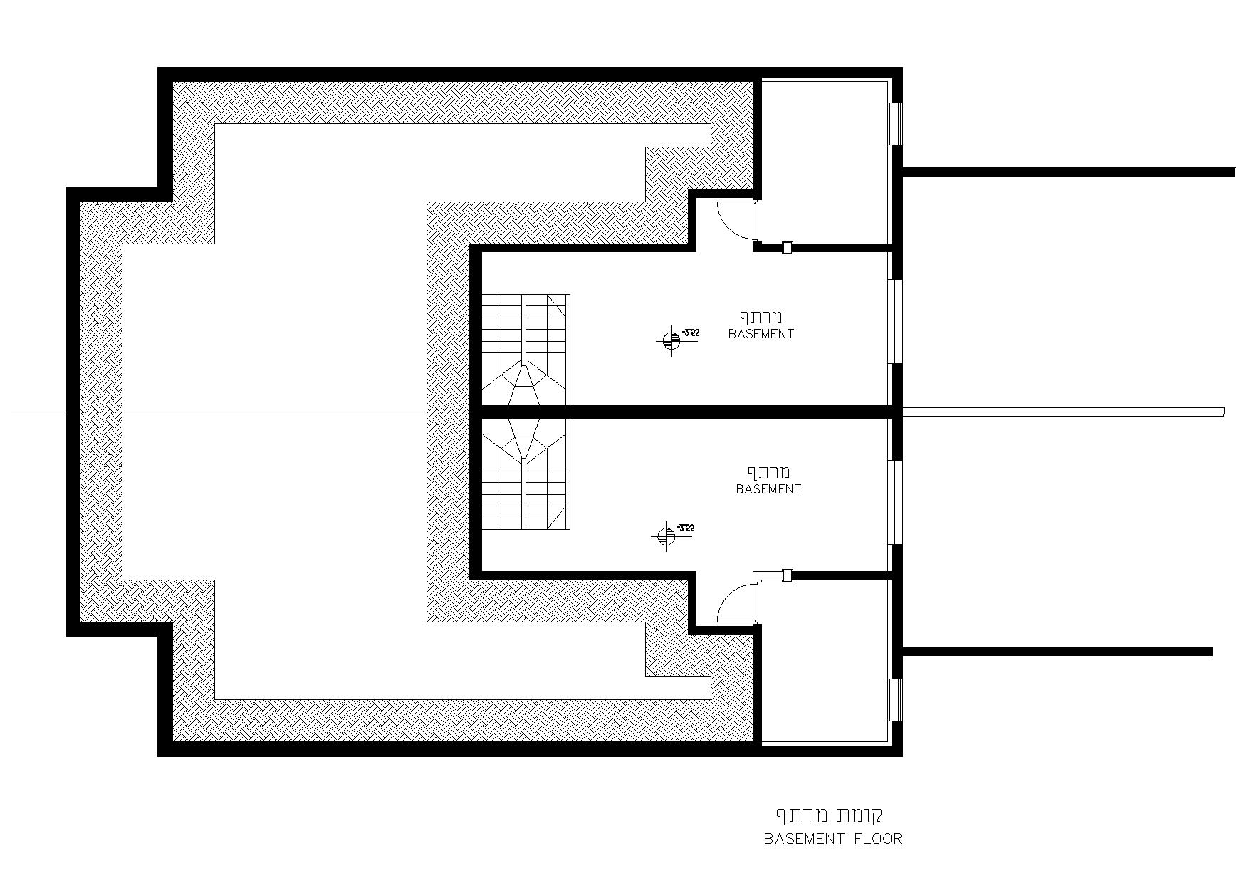
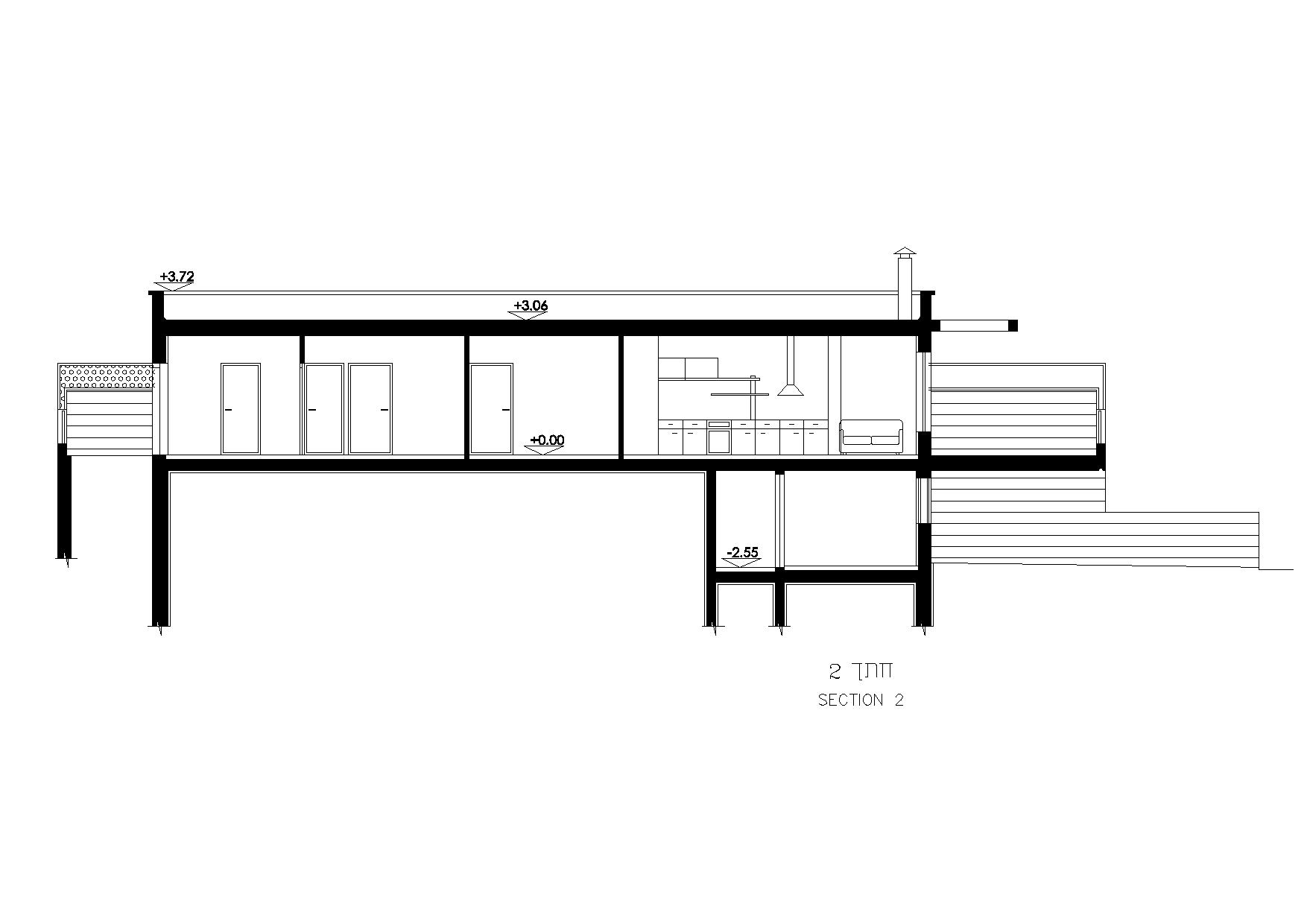
הפרויקט כולל: תוכנית קומת מרתף, תוכנית קומת קרקע, תוכנית גג, 4 חזיתות, 4 חתכים, ותמונות הדמיה.
| | מחיר קובץ PDF: | 19.99 | ₪ |  | שרטוט של התכנית לרכישה בפורמט DWG: מה זה קובץ DWG? | 99.99 | ₪ |  | |
| קטגוריה | בנייה פרטית | | סיווגים | דו משפחתי | | נתוני המגרש | עולה, מישורי | | מס' חדרים | 5 | | מס' מפלסים | 1 | | שטח | 250 מ”ר | | אורך בית מירבי | 23.80 מ | | רוחב בית מירבי | 16.40 מ |  | |
|
|
|
|