תוכנית אדריכלית מס' DA-8493 |
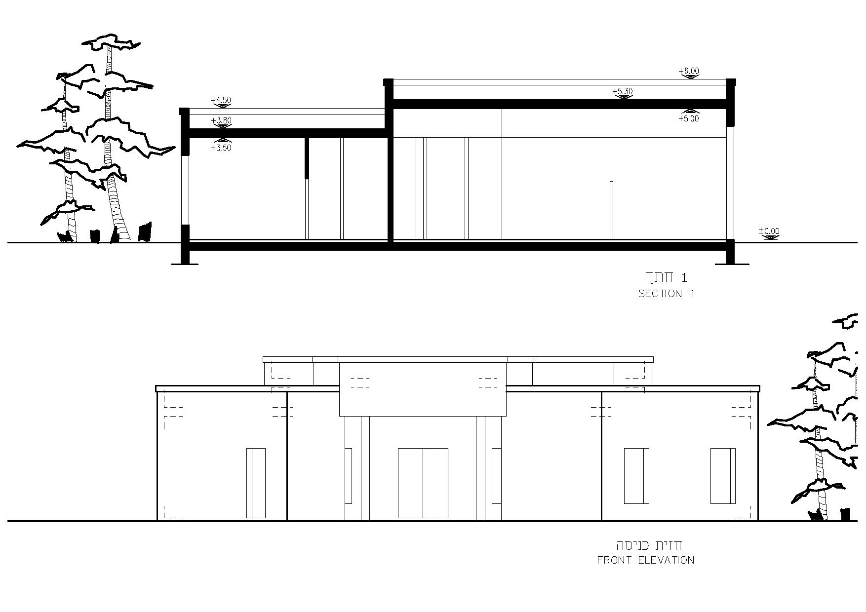
| בית קרקע חד משפחתי. חד קומתי. גג שטוח במפלסים שונים. מתוכנן פונקציונלי מאוד. מרווח ורחבת כניסה מיוחדת. במידות: אורך 18.70 מ´ ו- 18.95 מ´. מתוכנן בשטח כולל בנוי 194 מ"ר וכולל בתכנון: חדר מגורים בגובה תקרה 5.0 מ´. מטבח. פינת אוכל. חלל למשרד ביתי. מטבח. 2 חדרי שינה ילדים אחד מהם ממ"ד. חדר מקלחת משותפת לילדים. אופציית תכנון נוספת לחדרי ילדים. חדר כביסה. באגף מרוחק, יחידת הורים מאוד מרווחת. חדר מקלחת כולל ג´אקוזי. פינת קפה. יציאה אל חצר. הפרויקט כולל: תכנית קומת כניסה, תכנית גג. תכנית אופציה נוספת לחדרי ילדים. 1 חתך. 5 חזיתות. | | מחיר קובץ PDF: | 49.90 | ₪ |  | שרטוט של התכנית לרכישה בפורמט DWG: מה זה קובץ DWG? | 149.90 | ₪ |  | |
| קטגוריה | בנייה פרטית | | סיווגים | חד משפחתי | | נתוני המגרש | מישורי | | מס' חדרים | 3 | | מס' מפלסים | 1 | | שטח | 190 מ”ר | | אורך בית מירבי | 18.95 מ | | רוחב בית מירבי | 18.70 מ |  | |
|
|
|
|