תוכנית אדריכלית מס' YG-7045 |
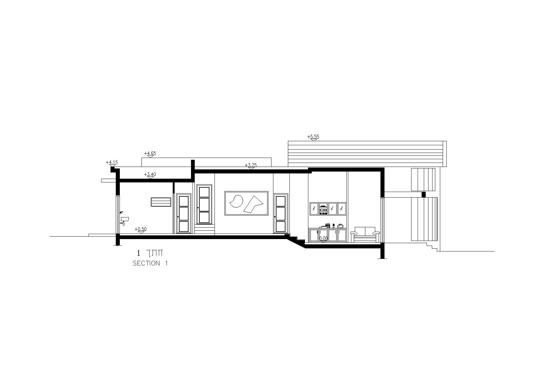
| תכנית אדריכלית לבית פרטי חד משפחתי במפלסים מפוצלים בני 3 מדרגות בין מפלס למפלס. מתוכנן באופן מרווח ומאוד פונקציונלי. שטח כולל 208 מ"ר. התכנון כולל במפלסים המפוצלים: חדר מגורים כחלל משותף עם מטבח. יציאה אל גינה. פינת אוכל מופרדת. יחידת הורים מרווחת מאוד + חדר רחצה + חדר ארונות. 3 חדרי שינה נוספים אחד מהם משמש חדר ביטחון. חדר רחצה כללי. חדר כביסה כולל יציאה אל גינה. התכנית כוללת תכנית קומת כניסה. תכנית גג. 2 חתכים. 4 חזיתות. | | מחיר קובץ PDF: | 19.99 | ₪ |  | שרטוט של התכנית לרכישה בפורמט DWG: מה זה קובץ DWG? | 39.99 | ₪ |  | |
| קטגוריה | בנייה פרטית | | סיווגים | חד משפחתי | | נתוני המגרש | מישורי | | מס' חדרים | 4 | | מס' מפלסים | 1 | | שטח | 210 מ”ר | | אורך בית מירבי | 17.70 מ | | רוחב בית מירבי | 14.00 מ |  | |
|
|
|
|