תוכנית אדריכלית מס' AB-4604 |
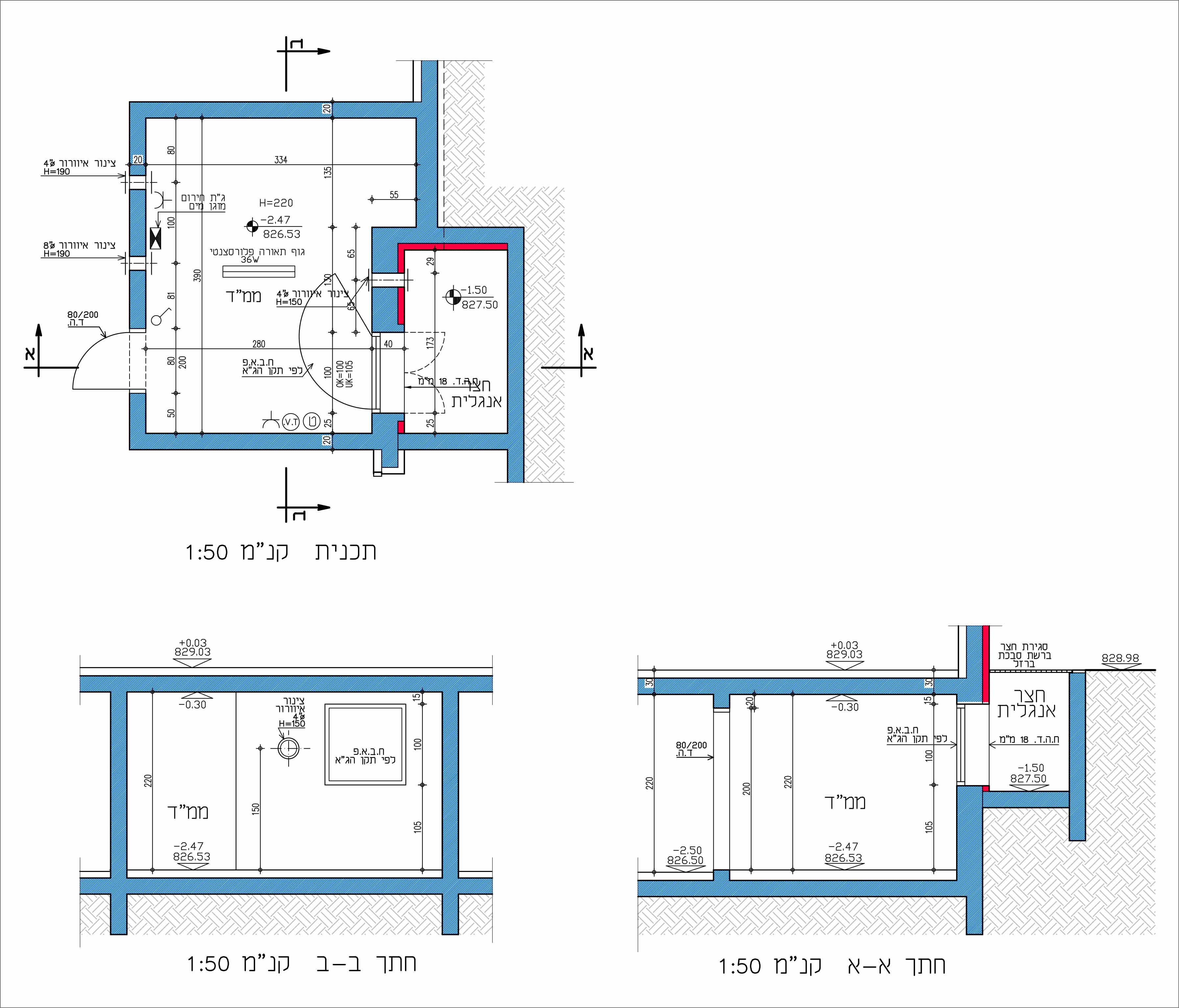
| ממ"ד המותאם לבית פרטי בקומת מרתף בנפח תקני (הג"א) 22 מ"ק. צינורות אוורור ,חשמל ,תאורה ופתחים בהתאם לדרישות הג"א. חלון הממ"ד מותאם לחצר אנגלית. | | מחיר קובץ PDF: | 4.99 | ₪ |  | שרטוט של התכנית לרכישה בפורמט DWG: מה זה קובץ DWG? | 9.99 | ₪ |  | |
| קטגוריה | בנייה פרטית | | סיווגים | מילוט ומיגון | | נתוני המגרש | עולה, יורד, מישורי | | מס' חדרים | 1 | | מס' מפלסים | 1 | | שטח | 15 מ”ר | | אורך בית מירבי | 0.00 מ | | רוחב בית מירבי | 0.00 מ |  | |
|
|
|
|