תוכנית אדריכלית מס' YG-5227 |
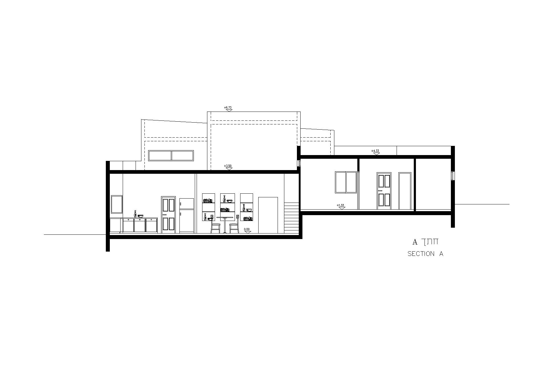
| בית דו קומתי מפלסים מפוצלים שטח 175 מ"ר בתוספת קומה שנייה כסוויטה פרטית.
מפרט תכנון: מבואה חיצונית מקורה. מבואה פנימית. חדר מגורים. פינת אוכל. מטבח. 3 חדרי שינה ילדים אחד מהם ממ"ד. מקלחת ילדים. יחידת הורים, מקלחת הורים, חדר ארונות. חדר כביסה. שרותי אורחים. | | מחיר קובץ PDF: | 4.99 | ₪ |  | שרטוט של התכנית לרכישה בפורמט DWG: מה זה קובץ DWG? | 24.99 | ₪ |  | |
| קטגוריה | בנייה פרטית | | סיווגים | חד משפחתי | | נתוני המגרש | מישורי | | מס' חדרים | 4 | | מס' מפלסים | 3 | | שטח | 175 מ”ר | | אורך בית מירבי | 19.20 מ | | רוחב בית מירבי | 11.00 מ |  | |
|
|
|
|