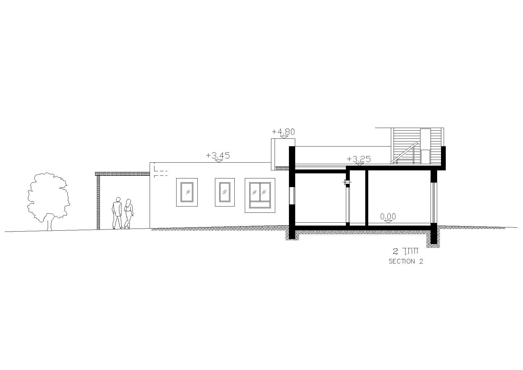
תוכנית אדריכלית מס' DA-1770 |
| יחידת מגורים במפלס אחד בנויה בשטח של 241 מ"ר. היחידה ניתנת לפיצול ל- 3 יחידות דיור.
רחבת כניסה מזמינה אל היחידות, מרווחת עם מזרקת מים במרכז.
מפרט תכנון יחידת דיור גדולה (127 מ"ר):
מבואת כניסה חיצונית מקורה: 4.2 מ"ר. מבואה פנימית: 5.8 מ"ר. חדר מגורים (סלון): 17 מ"ר. פינת אוכל: 10.5 מ"ר. מטבח: 13.8 מ"ר. חדר אורחים: 12.6 מ"ר. מקלחת אורחים: 4.6 מ"ר. ממ"ד כחדר שינה/חדר עבודה: 9.6 מ"ר. חדר הורים: 14 מ"ר, הניתן להפרדה כיחידה עצמאית הכוללת חדר מקלחת צמודה: 4.9 מ"ר. חדר כביסה: 4.5 מ"ר, כולל יציאה אל גינה, הכניסה אליו מחדר מקלחת הורים.
מפרט תכנון יחידת דיור קטנה (57 מ"ר):
חלל כניסה כולל סלון: 12.5 מ"ר. חדר עבודה המוסב למטבח כולל פינת אוכל: 7.6 מ"ר. חדר שינה: 9.8 מ"ר. חדר ממ"ד משמש חדר שינה: 10 מ"ר. חדר מקלחת: 4 מ"ר.
| | מחיר קובץ PDF: | 19.99 | ₪ |  | שרטוט של התכנית לרכישה בפורמט DWG: מה זה קובץ DWG? | 199.99 | ₪ |  | |
| קטגוריה | בנייה פרטית | | סיווגים | חד משפחתי | | נתוני המגרש | מישורי | | מס' חדרים | 5 | | מס' מפלסים | 1 | | שטח | 235 מ”ר | | אורך בית מירבי | 19.60 מ | | רוחב בית מירבי | 16.20 מ |  | |
|
|
|
|