תוכנית אדריכלית מס' DA-1377 |
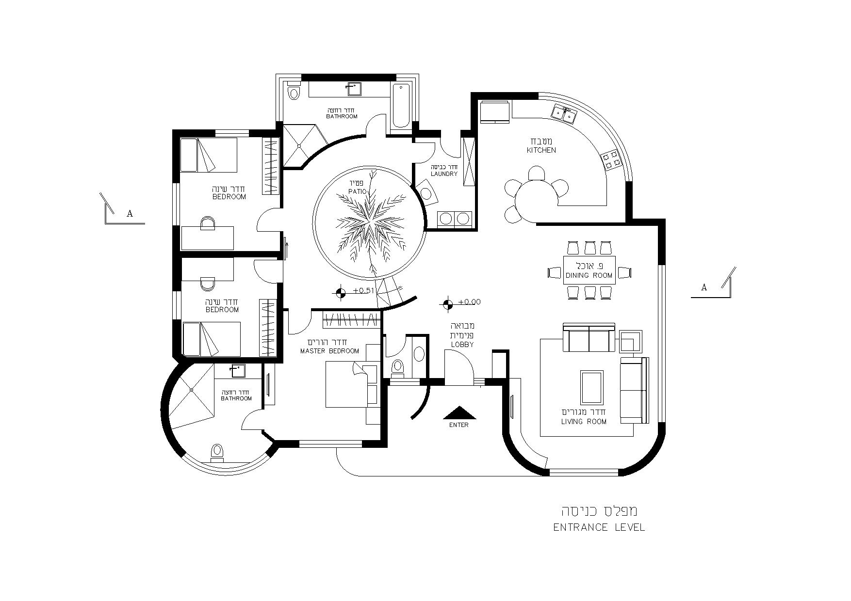
| בית פרטי חד משפחתי. קומה אחת. שני מפלסים. מפרט תכנון: מבואת כניסה חיצונית: 7.5 מ"ר, מבואה פנימית: 4.0 מ"ר, שרותי אורחים: 2.0 מ"ר, סלון: 29 מ"ר, פינת אוכל: 13.5 מ"ר, מטבח: 20 מ"ר, חדר שינה הורים: 18 מ"ר + חדר עגול ליחידת מקלחת הורים: 6.5 מ"ר, ממ"ד חדר שינה ילדים: 11.5 מ"ר, חדר שינה ילדים: 14 מ"ר, חדר אמבטיה כללית כולל מקלחת: 9 מ"ר, חדר כביסה כולל יציאה אל גינה: 6.5 מ"ר, פטיו עגול במרכז כולל סקיילייט עגול: 11 מ"ר, מעברים ושטחים פתוחים: כ - 15 מ"ר. | | מחיר קובץ PDF: | 19.99 | ₪ |  | שרטוט של התכנית לרכישה בפורמט DWG: מה זה קובץ DWG? | 99.99 | ₪ |  | |
| קטגוריה | בנייה פרטית | | סיווגים | חד משפחתי | | נתוני המגרש | מישורי | | מס' חדרים | 3 | | מס' מפלסים | 2 | | שטח | 200 מ”ר | | אורך בית מירבי | 17.20 מ | | רוחב בית מירבי | 14.05 מ |  | |
|
|
|
|