תוכנית אדריכלית מס' DA-2086 |
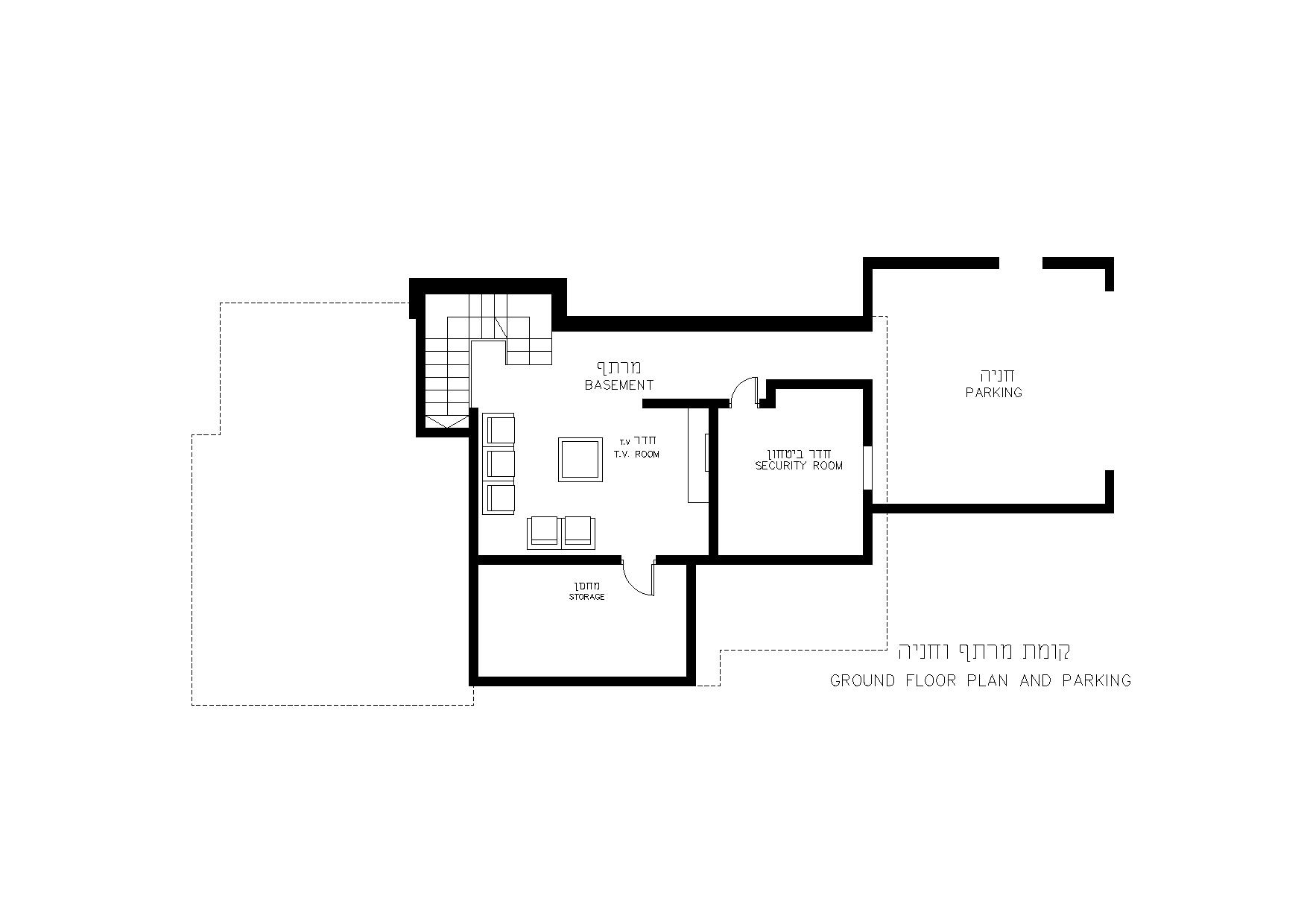
| בית פרטי חד משפחתי כולל יחידת דיור משנית מניבה בקומה שנייה עם כניסה נפרדת בשטח של 54 מ"ר, כוללת 2 חדרי שינה. יחידת הדיור הראשית בשטח בנוי עקרי, 215 מ"ר + קומת מרתף בשטח בנוי של 72 מ"ר + חנייה מקורה 32 מ"ר. יחידה זו כוללת 4 חדרי שינה כולל יחידת הורים בקומת קרקע עם חדר ארונות ומקלחת צמודים. במפלס קומת מרתף יש חדר טלויזיה, וממ"ד. הפרויקט כולל: תכנית הקומות, חתך, 2 חזיתות והדמיות. | | מחיר קובץ PDF: | 19.99 | ₪ |  | שרטוט של התכנית לרכישה בפורמט DWG: מה זה קובץ DWG? | 99.99 | ₪ |  | |
| קטגוריה | בנייה פרטית | | סיווגים | חד משפחתי | | נתוני המגרש | עולה, מישורי | | מס' חדרים | 5 | | מס' מפלסים | 2 | | שטח | 270 מ”ר | | אורך בית מירבי | 15.80 מ | | רוחב בית מירבי | 10.60 מ |  | |
|
|
|
|