תוכנית אדריכלית מס' DA-4024 |
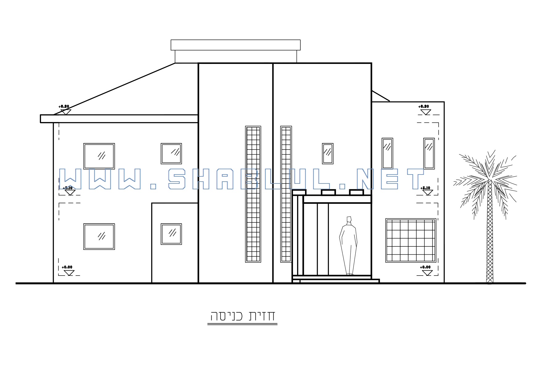
| בית פרטי חד משפחתי מרווח בן 4 חדרי שינה. בקומת קרקע חלל כפול המשמש כפינת אוכל + חדר ממ"ד המשמש כחדר שינה. בקומה שניה 3 חדרי שינה כולל יחידת הורים עם חדר מקלחת צמוד. חדר כביסה מרווח + יציאה אל מרפסת. חדר משפחה מרכזי המשקיף אל החלל הכפול. הפרויקט כולל: תכנית הקומות, חתך, שתי חזיתות והדמיות. | | מחיר קובץ PDF: | 19.99 | ₪ |  | שרטוט של התכנית לרכישה בפורמט DWG: מה זה קובץ DWG? | 99.99 | ₪ |  | |
| קטגוריה | בנייה פרטית | | סיווגים | חד משפחתי | | נתוני המגרש | מישורי | | מס' חדרים | 4 | | מס' מפלסים | 2 | | שטח | 225 מ”ר | | אורך בית מירבי | 15.10 מ | | רוחב בית מירבי | 11.40 מ |  | |
|
|
|
|