תוכנית אדריכלית מס' DA-9853 |
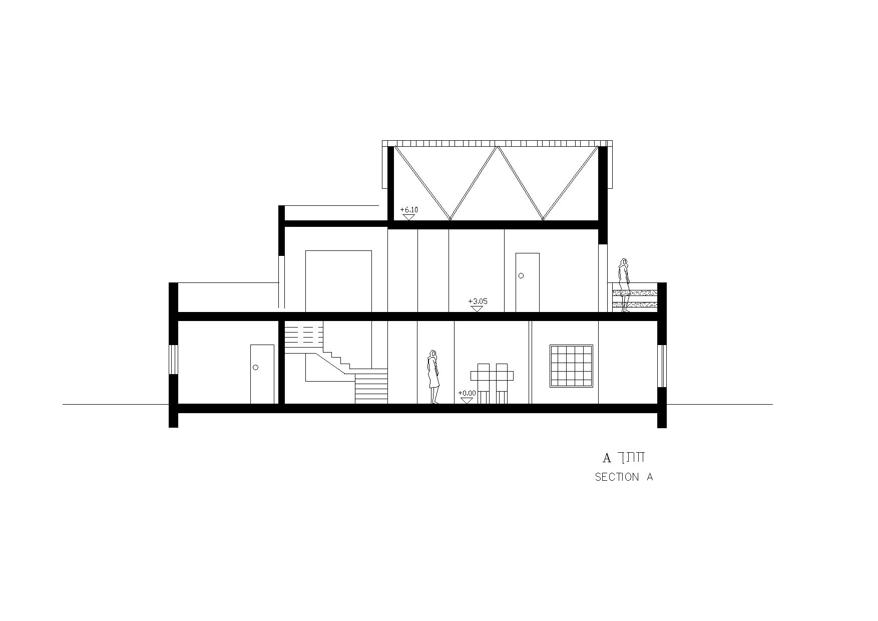
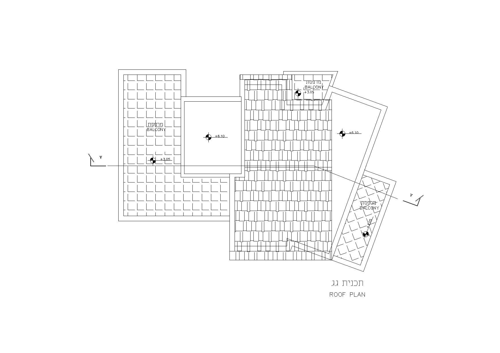
| בית פרטי חד משפחתי. 4 חדרי שינה. במפלסים שלמים. יחידת הורים בקומת כניסה. הפרויקט כולל תכנית קומת כניסה. תכנית קומת חדרים. תכנית גגות. חתך. שתי חזיתות. הדמיות המבנה. | | מחיר קובץ PDF: | 19.99 | ₪ |  | שרטוט של התכנית לרכישה בפורמט DWG: מה זה קובץ DWG? | 99.99 | ₪ |  | |
| קטגוריה | בנייה פרטית | | סיווגים | חד משפחתי | | נתוני המגרש | מישורי | | מס' חדרים | 4 | | מס' מפלסים | 2 | | שטח | 225 מ”ר | | אורך בית מירבי | 16.50 מ | | רוחב בית מירבי | 12.00 מ |  | |
|
|
|
|