תוכנית אדריכלית מס' DA-8797 |
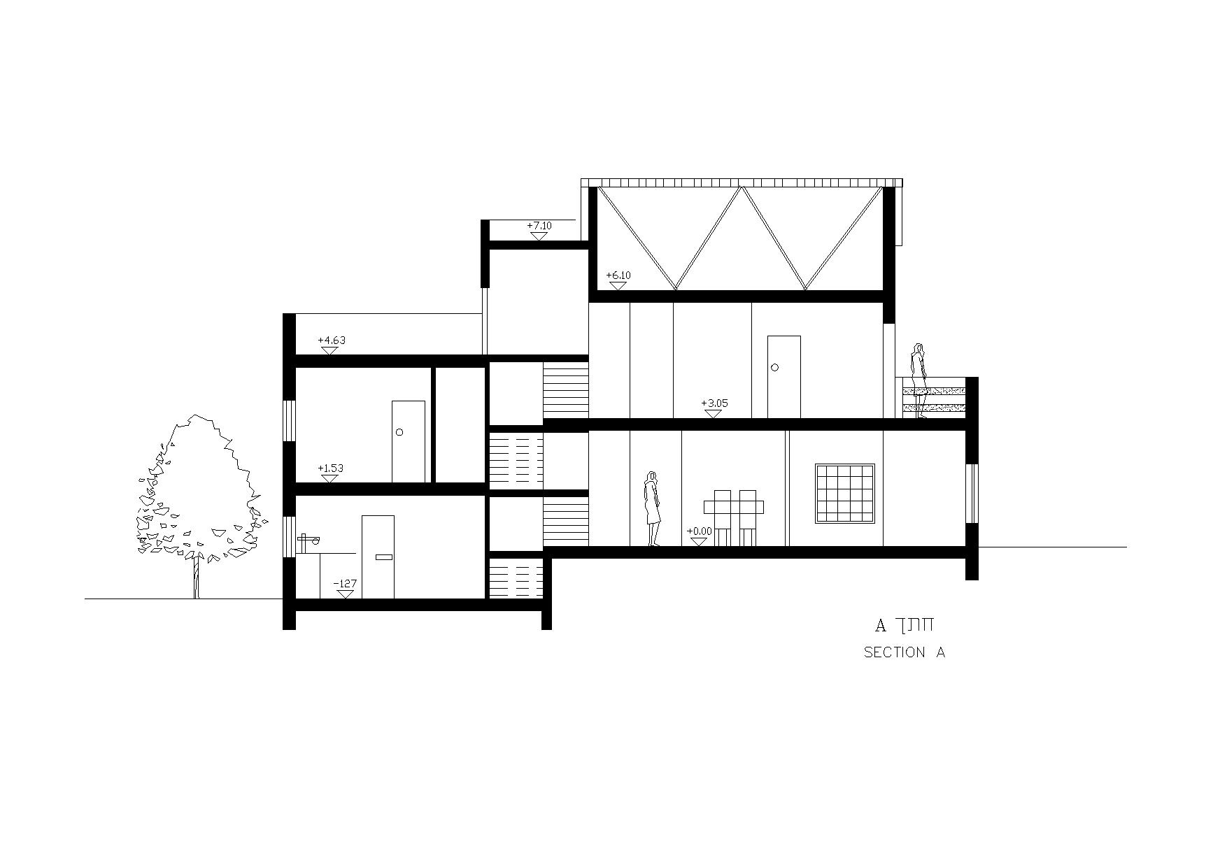
| בית פרטי חד משפחתי. 4 חדרי שינה. במפלסים מפוצלים. יחידת הורים. יחידת דיור נפרדת בגודל 60 מ"ר בקומת מרתף. הפרויקט כולל תכנית קומת מרתף. קומת כניסה. תכנית קומת חדרים. תכנית גגות. חתך. שתי חזיתות. הדמיות המבנה. | | מחיר קובץ PDF: | 19.99 | ₪ |  | שרטוט של התכנית לרכישה בפורמט DWG: מה זה קובץ DWG? | 99.99 | ₪ |  | |
| קטגוריה | בנייה פרטית | | סיווגים | חד משפחתי | | נתוני המגרש | מישורי | | מס' חדרים | 4 | | מס' מפלסים | 3 | | שטח | 285 מ”ר | | אורך בית מירבי | 16.50 מ | | רוחב בית מירבי | 12.00 מ |  | |
|
|
|
|