תוכנית אדריכלית מס' DA-8460 |
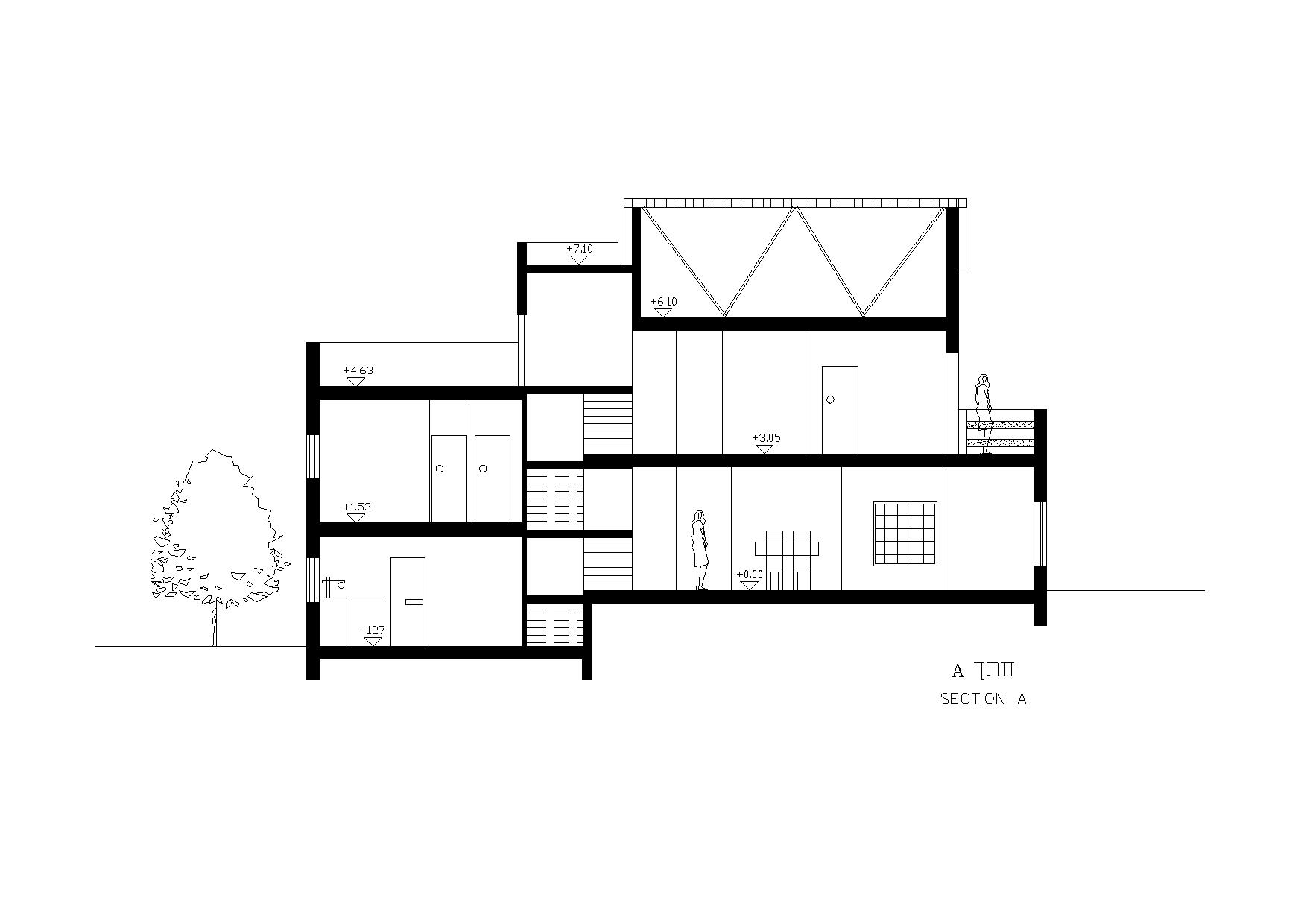
| בית פרטי חד משפחתי. 4 חדרי שינה. במפלסים מפוצלים. יחידת הורים כוללת חדר ארונות וחדר אמבטיה צמודים. יחידת דיור נפרדת בגודל 60 מ"ר בקומת מרתף. הפרויקט כולל תכנית קומת מרתף. קומת כניסה. תכנית קומת חדרים. תכנית גגות. שתי חזיתות. הדמיות המבנה. | | מחיר קובץ PDF: | 19.99 | ₪ |  | שרטוט של התכנית לרכישה בפורמט DWG: מה זה קובץ DWG? | 99.99 | ₪ |  | |
| קטגוריה | ללא קטוגוריה | | סיווגים | חד משפחתי | | נתוני המגרש | עולה, יורד, מישורי | | מס' חדרים | 4 | | מס' מפלסים | 3 | | שטח | 285 מ”ר | | אורך בית מירבי | 16.50 מ | | רוחב בית מירבי | 12.00 מ |  | |
|
|
|
|