תוכנית אדריכלית מס' DA-9881 |
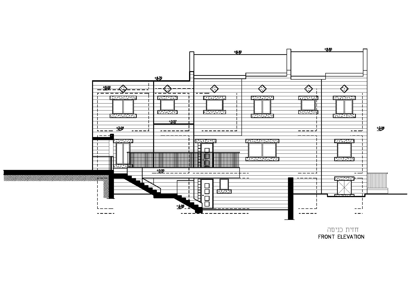
| בית דו משפחתי אי ריגולרי. סה"כ שטח בנוי 340 מ"ר. מפרט התכנון: חדרי מגורים. מטבח. פינת אוכל. שרותי אורחים. חדר הורים כולל חדר רחצה. חרי ילדים כולל חדר רחצה. חדר כביסה. קומת מרתף כולל ממ"ד המשמש כחדר שינה.עליית גג. | | מחיר קובץ PDF: | 19.99 | ₪ |  | שרטוט של התכנית לרכישה בפורמט DWG: מה זה קובץ DWG? | 99.99 | ₪ |  | |
| קטגוריה | בנייה פרטית | | סיווגים | דו משפחתי | | נתוני המגרש | עולה, יורד, מישורי | | מס' חדרים | 3 | | מס' מפלסים | 2 | | שטח | 340 מ”ר | | אורך בית מירבי | 19.80 מ | | רוחב בית מירבי | 16.70 מ |  | |
|
|
|
|