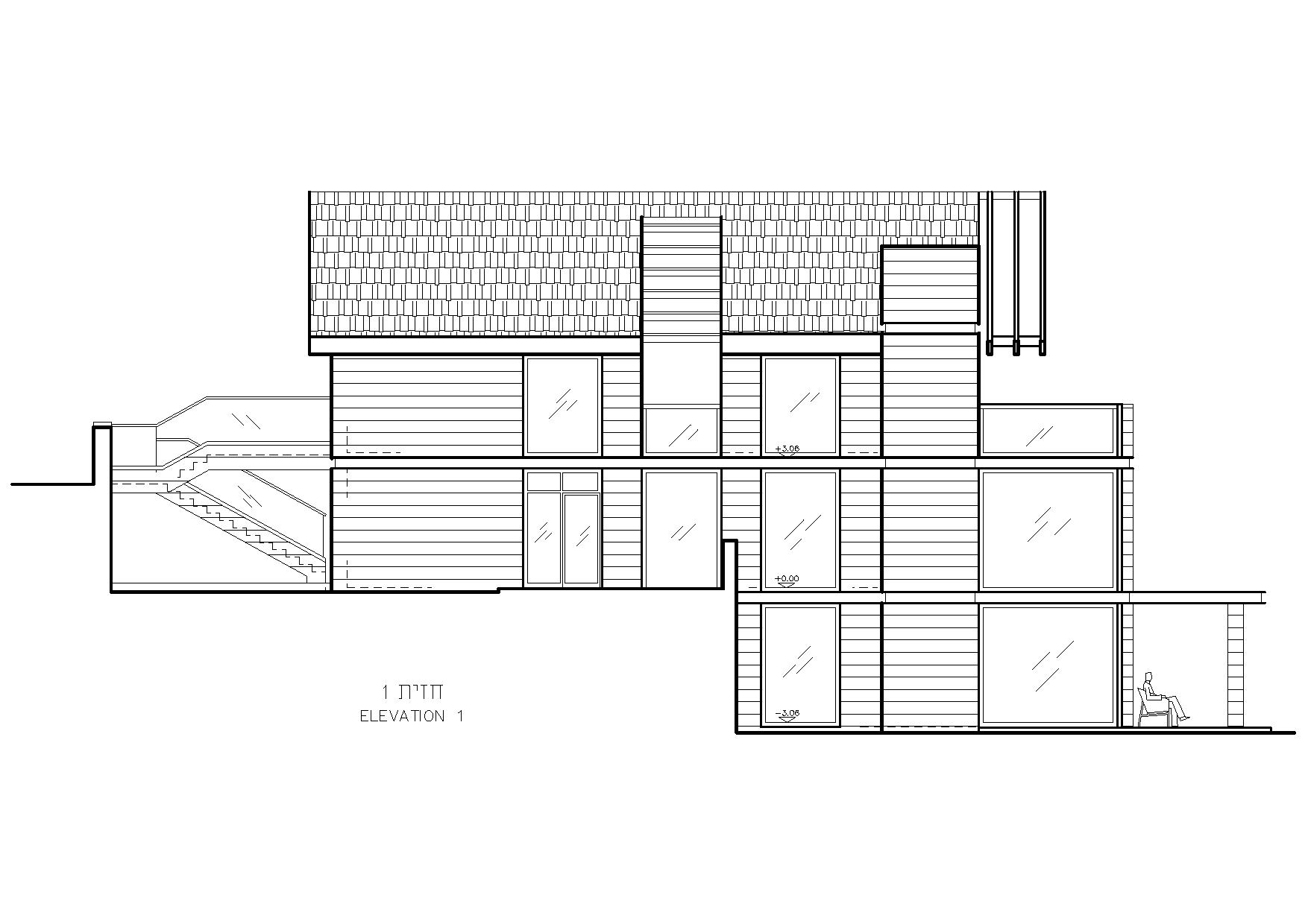
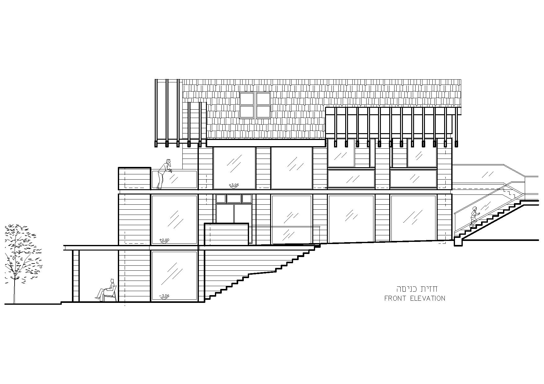
תוכנית אדריכלית מס' DA-9557 |
| בית חד משפחתי בסגנון אדריכלות מודרנית במפלסים שלמים, מתוכנן 2 קומות מגורים + קומת מרתף כולל מעלית ועשיר חלונות. גישה ישירה מהכביש אל קומה שנייה כאפשרות לפיצול יחידת דיור נוספת. שטח כולל בנוי 284 מ"ר + מרתף בשטח 61 מ"ר. מפלס כניסה ראשי בשטח בנוי 170 מ"ר כולל בתכנון: חדר מגורים כולל גלריה הצופה אל חלל קומת מרתף. מטבח. פינת אוכל. מזווה. חדר כביסה. מעלית לכל הקומות. חדרי שינה ליחידת הורים. חדר ג´אקוזי וחדר ארונות צמודים. 3 חדרי שינה ילדים אחד מהם משמש חדר ביטחון. חדר רחצה. מפלס קומה שנייה בשטח בנוי 114 מ"ר כולל בתכנון: יחידה זוגית מרווחת. חדר רחצה צמוד. חדר שינה. חדר רחצה. חדר מגורים. חלל בלהסבה למטבח ופינת אוכל. אופציה לחדר כביסה. הפרויקט כולל: תכנית קומת מרתף, קומת כניסה, תכנית קומת חדרים, תכנית קומת גג, 2 חתכים, 4 חזיתות. | | מחיר קובץ PDF: | 19.99 | ₪ |  | שרטוט של התכנית לרכישה בפורמט DWG: מה זה קובץ DWG? | 99.99 | ₪ |  | |
| קטגוריה | בנייה פרטית | | סיווגים | חד משפחתי | | נתוני המגרש | עולה, יורד, מישורי | | מס' חדרים | 5 | | מס' מפלסים | 2 | | שטח | 285 מ”ר | | אורך בית מירבי | 18.20 מ | | רוחב בית מירבי | 9.95 מ |  | |
|
|
|
|