תוכנית אדריכלית מס' DA-9788 |
| מפרט תכנון:
בית פרטי חד משפחתי, מתוכנן 4 קומות.
קומת מרתף: ממ"ד: 11 מ"ר, חלל מרכזי: 22.5 מ"ר, חדר הסקה: 2 מ"ר.
קומת כניסה: מבואה חיצונית: 2.5 מ"ר, מבואה פנימית: 3 מ"ר, חלל מדרגות כולל הכנה למעלית: 8.5 מ"ר, שרותי אורחים כולל נטילה: 3.6 מ"ר, סלון משולב עם פינת אוכל: 43.5 מ"ר, מטבח: 15 מ"ר, מזווה: 6 מ"ר, פטיו מרכזי יציאה מהסלון וממעבר כללי: 21 מ"ר, חדר שינה הורים: 20 מ"ר, מקלחת הורים: 4.5 מ"ר, חדר ארונות הורים: 4.5 מ"ר, מעברים חופשיים: 6.5 מ"ר.
קומת חדרי שינה: חדר זוגי: 12 מ"ר, מקלחת צמודה לחדר שינה: 3.6 מ"ר, חדר שינה ילד: 11 מ"ר, חדר שינה ילד: 11 מ"ר, חדר טלוויזיה כולל יציאה אל מרפסת: 11 מ"ר, אמבטיה כללית: 6 מ"ר, חדר כביסה כולל יציאה אל מרפסת: 4 מ"ר, מעברים כלליים: 10 מ"ר, חלל מדרגות כולל הכנה למעלית: 8.5 מ"ר, כניסה נפרדת לקומה זו כאופציה ליחידה נפרדת.
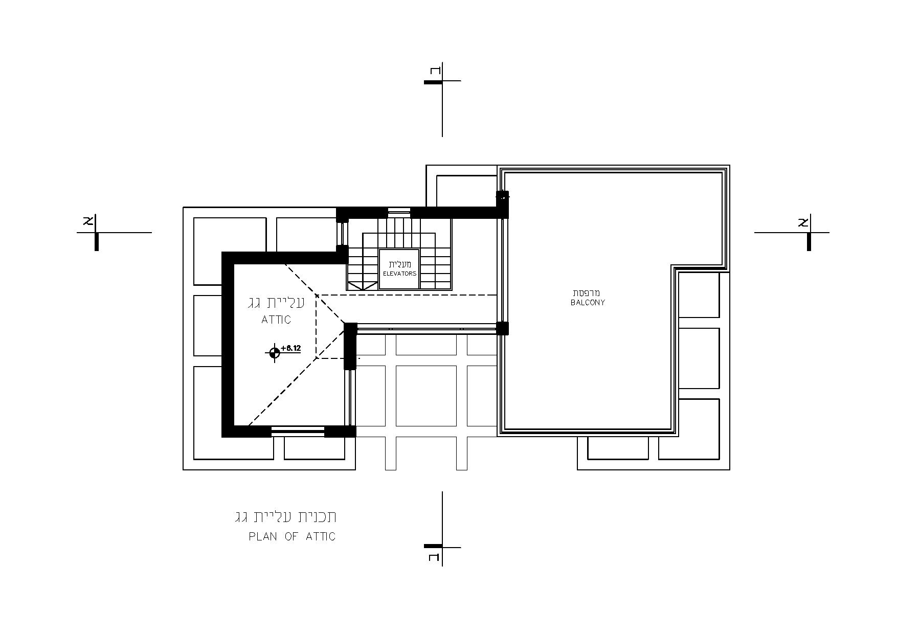
קומת עליית גג: חלל מרכזי: 20 מ"ר, יציאה אל מרפסת: 47 מ"ר, מעברים: 9 מ"ר.
| | מחיר קובץ PDF: | 19.99 | ₪ |  | שרטוט של התכנית לרכישה בפורמט DWG: מה זה קובץ DWG? | 99.99 | ₪ |  | |
| קטגוריה | בנייה פרטית | | סיווגים | חד משפחתי | | נתוני המגרש | עולה, יורד, מישורי | | מס' חדרים | 5 | | מס' מפלסים | 2 | | שטח | 250 מ”ר | | אורך בית מירבי | 18.20 מ | | רוחב בית מירבי | 9.80 מ |  | |
|
|
|
|