תוכנית אדריכלית מס' DA-9439 |
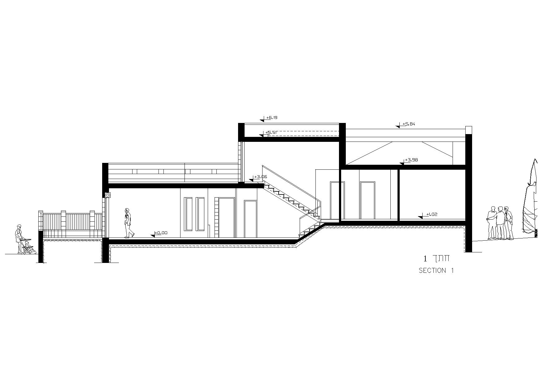
| בית פרטי מפלסים מפוצלים בשטח 180.0 מ"ר. מפרט תכנון: מבואת כניסה. חדר מגורים. מטבח. פינת אוכל. שרותי אורחים. חדר הורים כולל חדר רחצה. 4 חדרי ילדים אחד מהם ממ"ד. חדר רחצה. חדר כביסה. פינת טלויזיה. קומת מרתף. מרפסת גג ענקית. | | מחיר קובץ PDF: | 19.99 | ₪ |  | שרטוט של התכנית לרכישה בפורמט DWG: מה זה קובץ DWG? | 99.99 | ₪ |  | |
| קטגוריה | בנייה פרטית | | סיווגים | חד משפחתי | | נתוני המגרש | עולה, יורד, מישורי | | מס' חדרים | 5 | | מס' מפלסים | 2 | | שטח | 180 מ”ר | | אורך בית מירבי | 20.50 מ | | רוחב בית מירבי | 11.20 מ |  | |
|
|
|
|