תוכנית אדריכלית מס' DA-2155 |
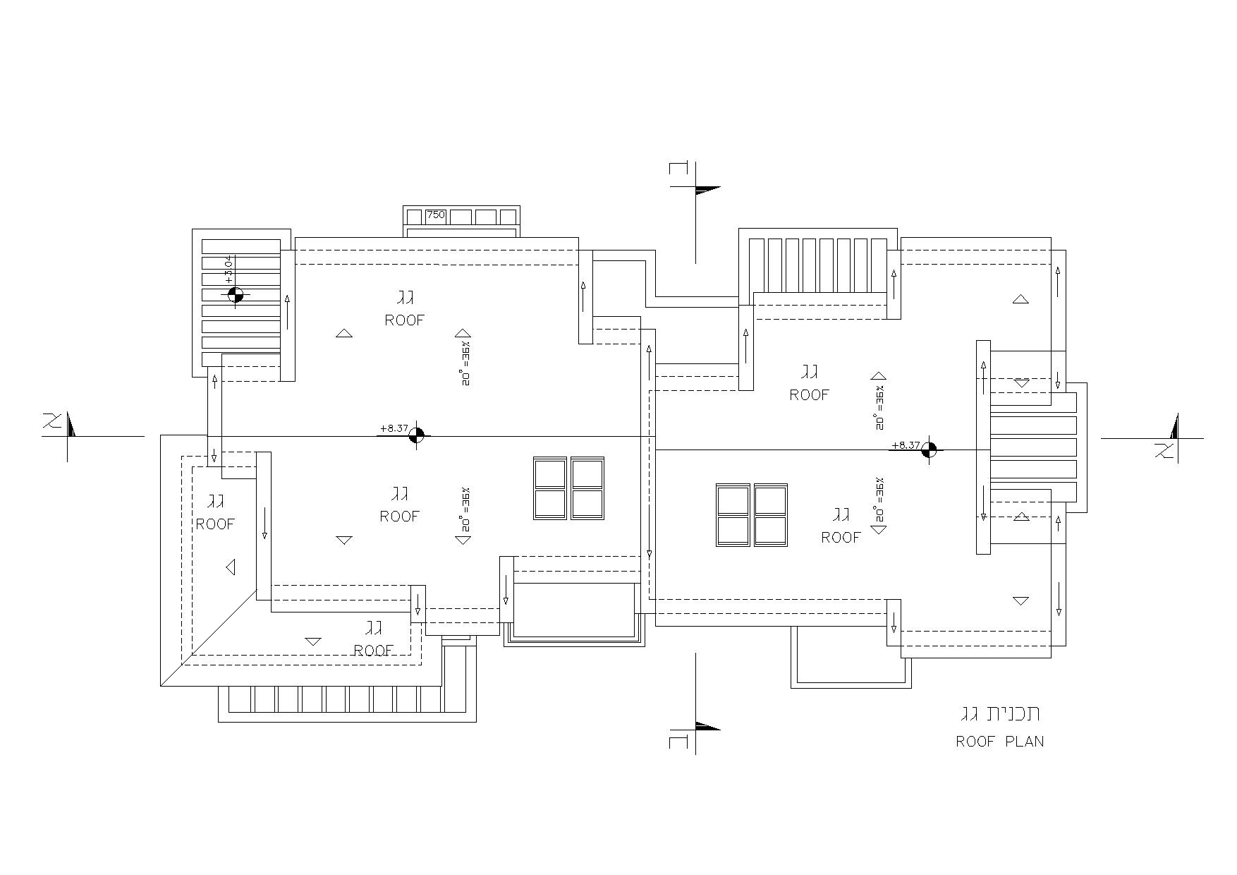
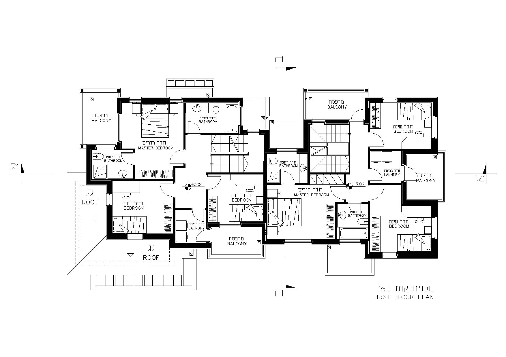
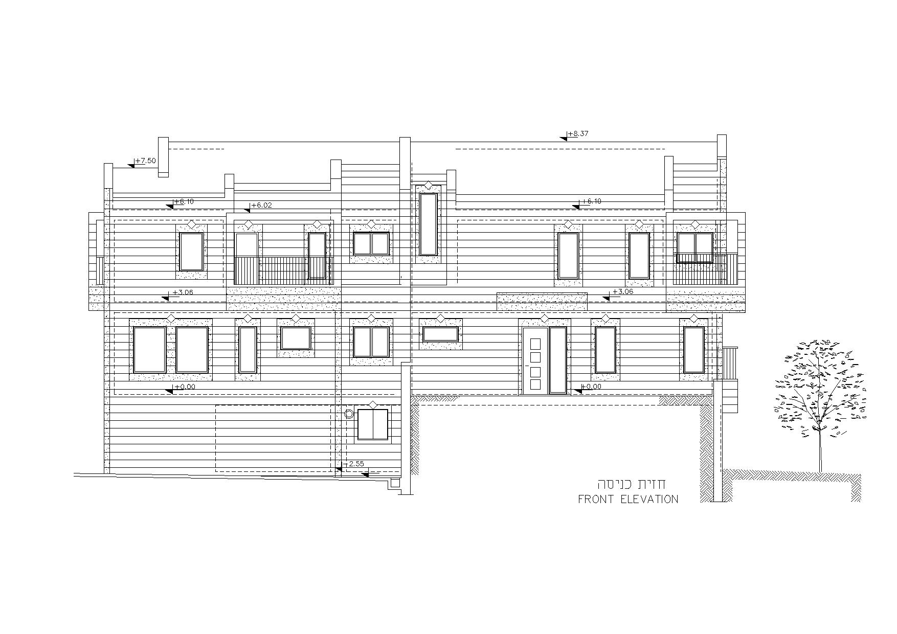
| בניין דו משפחתי לא זהה, בן 3 קומות ומתוכנן באבן ירושלמית. שני החצאים דומים בגודלם בכל הקומות, לכל יחידה מתוכננים 3 חדרי שינה כולל יחידת הורים עם חדר מקלחת צמודה, בקומת כניסה מתוכנן חדר משפחה ביחידה אחת ובאחרת חדר בישול, הפרויקט כולל: תכנית קומת מרתף עם אופציה ליחידות דיור בכפוף לאישור הוועדה, תכנית קומת כניסה, תכנית גגות, 4 חתכים, 4 חזיתות. | | מחיר קובץ PDF: | 19.99 | ₪ |  | שרטוט של התכנית לרכישה בפורמט DWG: מה זה קובץ DWG? | 99.99 | ₪ |  | |
| קטגוריה | בנייה פרטית | | סיווגים | דו משפחתי | | נתוני המגרש | עולה, יורד, מישורי | | מס' חדרים | 3 | | מס' מפלסים | 2 | | שטח | 440 מ”ר | | אורך בית מירבי | 20.80 מ | | רוחב בית מירבי | 10.00 מ |  | |
|
|
|
|