תוכנית אדריכלית מס' DA-2507 |
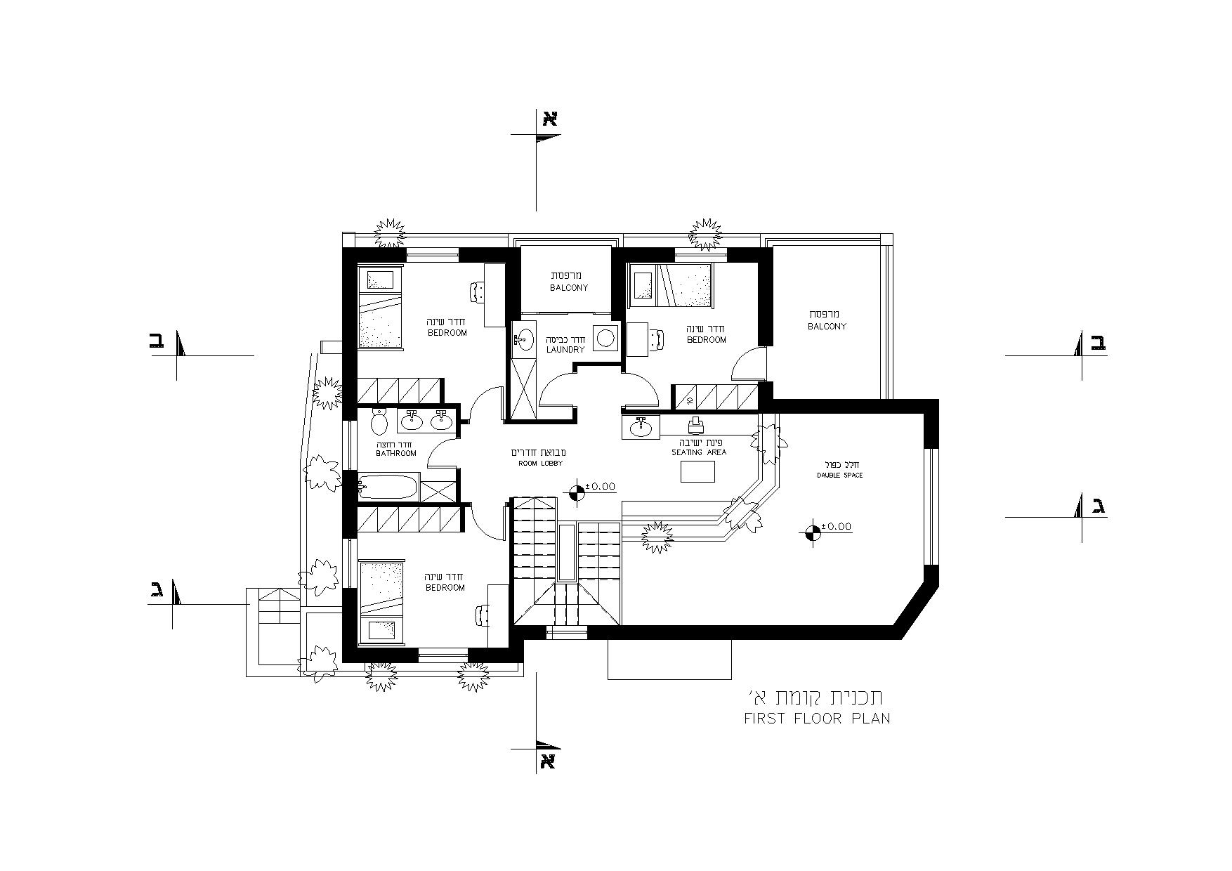
| תכנית בית פרטי בן שתי קומות, מתוכנן עם אבן ירושלמית. כניסה ראשית מרווחת מאוד כולל קירוי. התכנון כולל יחידת הורים בקומת כניסה היחידה כוללת חדר אמבטיה מרווח וחדר ארונות גדול. חדר ביטחון כולל חדר מקלחת חיצוני צמוד. יציאה מחדר המגורים הגדול והמרווח אל מרפסת גינה. מטבח גדול כולל אי וחדר מזווה. בקומה שנייה יש שלושה חדרי שינה וחלל כפול שצופה אל הסלון, בשטח הגלריה מתוכנן חדר משפחה. הפרויקט כולל: תכנית קומת כניסה, תכנית קומת חדרים, תכנית גגות, חתכים וחזיתות. | | מחיר קובץ PDF: | 19.99 | ₪ |  | שרטוט של התכנית לרכישה בפורמט DWG: מה זה קובץ DWG? | 99.99 | ₪ |  | |
| קטגוריה | בנייה פרטית | | סיווגים | חד משפחתי | | נתוני המגרש | עולה, יורד, מישורי | | מס' חדרים | 5 | | מס' מפלסים | 2 | | שטח | 230 מ”ר | | אורך בית מירבי | 15.30 מ | | רוחב בית מירבי | 10.80 מ |  | |
|
|
|
|