חזרה לפורום הראשי
לינארי

חוות דעת נוספת לתכנית אדריכלית

ע"י יוסי, 06-02-2013, 23:28 (לפני 4821 ימים)

קיבלתי תכנית אדריכלית לבית שאני מתכנן לבנות.
אני מעוניין לקבל חוות דעת נוספת מאדריכל נוסף.

האם יש מצב שאני מעלה תכנית לפורום ומקבל התייחסות?

מודה לכם מראש, על התשובה.

נעול
  1910 צפיות

חוות דעת נוספת לתכנית אדריכלית

ע"י מיקה - אדריכלית ומעצבת פנים, 06-02-2013, 23:39 (לפני 4821 ימים) @ יוסי

תעלה, למה אתה מדבר.
בשביל מה יש כאן פורום?

נעול
  1871 צפיות

הינה התכנית

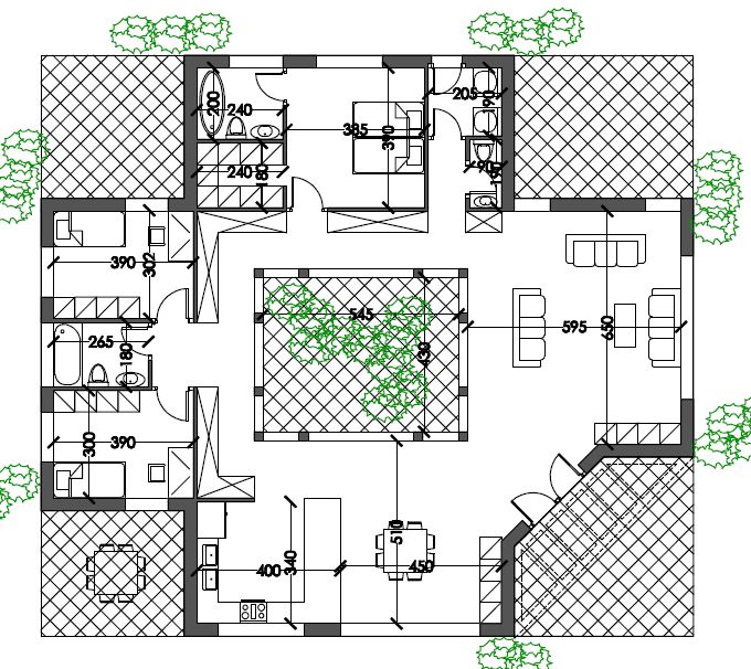
ע"י יוסי, 07-02-2013, 08:51 (לפני 4821 ימים) @ מיקה - אדריכלית ומעצבת פנים

אשמח לקבל הערות והארות בלי.
תודה[image]

נעול
  1784 צפיות

חוות דעת נוספת לתכנית אדריכלית

ע"י יהודה לוי, 07-02-2013, 11:01 (לפני 4821 ימים) @ יוסי

שלום יוסי,
תכנון זה הרבה משחק אינטראקטיבי בינך לבין המתכנן.
רק הערה אחת, כשאתה נכנס לבית אתה לא מצפה למצוא פינה
(של הפטיו) מול הפרצוף, לא נעים.

נעול
  1790 צפיות

שלום יוסי

ע"י דוד עמירם, 07-02-2013, 22:00 (לפני 4820 ימים) @ יוסי

תכנית מעניינת ולא שגרתית.
בעניין הפטיו, על מנת לרכך את צורתו הגיאומטרית של הפטיו ביחס לסובב אותו, יש לדעתי, לתכנן פטיו בצורת מתומנת או משושת.

מעבר לכך אני רואה תכנון חכם מאוד של האדריכל שלך.

1. יחידת ההורים מוגנת בפרטיותה (למעט דלת הכניסה כדאי לתת מחשבה נוספת.

2. חדרי הילדים מתוכננים היטב.

3. יס מטבח , פינת אוכל, סלון לא רע.

4. בדרך כלל אני ממליץ על רצף של סלון, מטבח ופינת אוכל. לא מחייב וכל אחד לפי תפיסתו.

בהצלחה

נעול
  1766 צפיות