כיווני אויר
שלום רב
דירה שנמצאת בקומה ראשונה בזכרון יעקב.
הסלון והמטבח פונים רק למזרח. ושאר החדרים לצפון. אני חוששת שתהיה חמה בגלל המזרח. והכיוון האחד.ולא תהיה מאווררת.
אשמח לחוות דעתך![[image]](images/uploaded/201803241839565ab67f5c3049d.jpg)
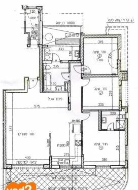
שלום רב
דירה שנמצאת בקומה ראשונה בזכרון יעקב.
הסלון והמטבח פונים רק למזרח. ושאר החדרים לצפון. אני חוששת שתהיה חמה בגלל המזרח. והכיוון האחד.ולא תהיה מאווררת.
אשמח לחוות דעתך![[image]](images/uploaded/201803241839565ab67f5c3049d.jpg)