חזרה לפורום הראשי
לינארי

אשמח לחוות דעת

ע"י עמרי, 07-12-2015, 00:17 (לפני 3788 ימים)

[image]


היי,
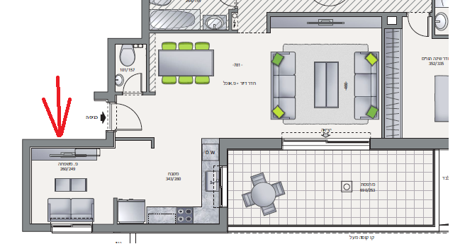
אשמח לשמוע את דעתכם בנוגע לתמונה המצורפת

מה עלי לעשות עם השטח המוגדר כ"חדר משפחה" מרגיש לי לעשות סלון #2 מעט בזבוז

האם להרחיב את המטבח? האם לעשות בו שימוש אחר ? או האם אכן לעשות בו שימוש כחדר משפחה נוסף.

תודה
עמרי


[image]

נעול
  1194 צפיות

דעתי...

ע"י דוד עמירם - מנהל הפורם, 07-12-2015, 08:57 (לפני 3787 ימים) @ עמרי

עמרי, בוקר טוב.

בתמונה ששלחת, מבחינים רק בסלון, מטבח ופינת אוכל ו... הכניסה הראשית אל הדירה.

בהמשך אני רואה גישה אל חדרי השינה.
בכל מקרה, חסרה התמונה הכוללת שתאפשר חוות דעת ראויה.

1. דירה מצומצמת מאוד!!!
2. פינת האוכל "תקועה" במעבר אל החדרים, במצב סגור, שולחן האוכל יפריע, ובמצב פתוח המעבר יחסם באופן שלא יאפשר מעבר גם תוך כדי תמרון.
3. חדר המגורים במקומו ואין לשנות את מיקומו.

בקיצור, עם כל הכבוד, לא הבנתי את שאלתך? האם היה כאן ניסיון מצידך לשווק חברה שמייצרת מערכות ישיבה לחדרי מגורים?? משום מה כך זה נראה.

ראה... #2... מה משמעות הסימן???!!!

נעול
  1073 צפיות

דעתי...

ע"י עמרי, 07-12-2015, 09:11 (לפני 3787 ימים) @ דוד עמירם - מנהל הפורם

לא צירפתי את כל השרטוט כי השאלה היתה ממוקדת לאזורים שלגביהם יש לי ספקות.
מבואה, מטבח, פינת אוכל וחדר משפחה.

משווק מערכות ישיבה ?מת לדעת איפה פה השיווק.

נעול
  1060 צפיות