חזרה לפורום הראשי
לינארי

קבלת הערות לסקיצה (כמעט) סופית מאדריכל

ע"י Lirsch, 20-11-2015, 00:07 (לפני 3805 ימים)

היי לכולם,
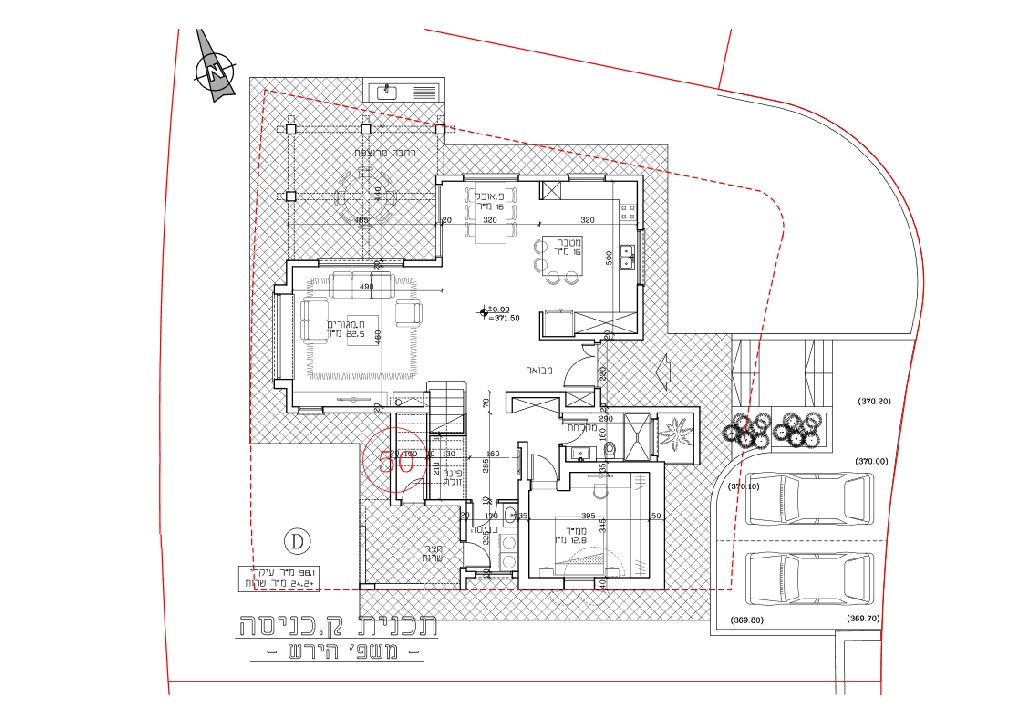
ביצענו מספר סקיצות עם האדריכל שלנו לבניית ביתנו בצפון, מגרש של 500מ״ר.
להלן הסקיצה הכמעט סופית, עכשיו הגיע זמן תגובות המומחים פה כדי שנוכל לסכם את הסקיצה.
תודה מראש על התגובות.

[image]

[image]

נעול
  2774 צפיות

קבלת הערות לסקיצה (כמעט) סופית מאדריכל

ע"י דוד עמירם - מנהל הפורם, 20-11-2015, 10:54 (לפני 3804 ימים) @ Lirsch

שלום, ובהצלחה בפרויקט
תכנית מעניינת מאוד!!!
מעט סבלנות והיא תשתלם!!
אעיין בה ואחווה את דעתי בתחילת השבוע הקרוב.

נעול
  2483 צפיות

סקיצה אדריכלית

ע"י אדיר, 21-11-2015, 15:13 (לפני 3803 ימים) @ Lirsch

היי קודם כל מזל טוב תהליך הקמת בית הוא תהליך מבורך ואני ממליץ לכם בחום להתייעץ עם עוד משרדי אדריכלות אני יכול להמליץ על משרד אדריכלים בצפון שבראשם עומדת ענת האוזר - נסו איתה אני בטוח שיהיה לה עצות טובות ואולי אפילו תהפוך לחלק מהתהליך עצמו!

נעול
  2508 צפיות

סקיצה אדריכלית

ע"י Lirsch, 21-11-2015, 15:49 (לפני 3803 ימים) @ אדיר

היי אדיר, תודה על ההמלצה.
למען הסר ספק, אנחנו מאוד מרוצים מהאדריכל שלנו והוא פתוח מאוד לשמוע אותנו ומבצע שינויים בהתאם לדרישות, הוא יהיה האדריכל מתחילת ועד סוף הפרויקט...
באנו לכאן בכדי לשמוע חוות דעת אחרות של תיקונים פה ושם ולא הקמת פרויקט מאפס.

נעול
  2449 צפיות

סקיצה אדריכלית

ע"י מליבו, 25-02-2016, 17:56 (לפני 3707 ימים) @ אדיר

תודה רבה לכם!

ישנו אתר שמציע וילה עם בריכה מקורה
וישנו אתר שמציע וילה עם בריכה גדולה או קטנה יותר.

נעול
  2363 צפיות

קבלת הערות לסקיצה (כמעט) סופית מאדריכל

ע"י דוד עמירם - מנהל הפורם, 22-11-2015, 09:10 (לפני 3802 ימים) @ Lirsch

בוקר טוב Lirsch

ראשית, אל תחליף אדריכל אם אתה מרוצה מהקיים, משחק הפינגפונג, מטרתו לשפר תכנון.

לעניין שאלתך.

קומת הכניסה.

1. את קירות המגן של הממ"ד, ניתן לבטל אם תתקין דלת נגד רסיסים (באישור הג"א לתכנית שתגיש) דלת זו, מסיבית מדלת ממ"ד רגילה ומחירה גבוה יותר.
תוכל להתרשם באינטרנט או לבקר במקום בו היא מוצעת למכירה (חברת פלרז, מייצרת סטים של ממד"ים ובכלל זה, את הדלת הזו.
היתרון הגדול בביטול או צמצום קירות המגן, בגמישות הביצוע והאפשרות לשינויים עתידיים ללא הפרעת קירות בטון.

2. מיקום חדר הכביסה בקומת קרקע אינו אידיאלי כשהחדרים נמצאים בקומה שנייה. תידרש לעליות וירידות אין סופיות רק בגלל נושא הכביסה. ממליץ להקדיש מחשבה נוספת על כך.

3. רחבת הכניסה הפנימית, משתרעת על פני שטח גדול מידי כשבקומה שנייה זה חסר.

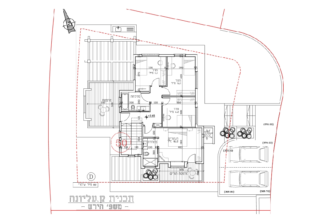
קומה שנייה

1. ההגעה אל מפלס קומה שנייה מעט לחוצה!! חסרה תחושת המרחב הפתוח לפני הכניסה אל החדרים ונראה כי ההגעה נעשית דרך מבוכים למרות שרוחב המסדרונות 1.20 מ'.
בבית פרטי כדאי להשקיע שטח במרחבים תפוחים יותר.

למעט הנ"ל, הכל בסדר גמור והאדריכל שלכם עבד על פי דרישות ומגבלות שאנו לא ערים להם.

בהצלחה ושבוע טוב.

נעול
  2504 צפיות