חזרה לפורום הראשי
לינארי

עצות

ע"י ימית, 07-08-2014, 15:52 (לפני 4274 ימים)

שלום
אנחנו גרים בדומשפחתי 2 קומות
המציאות היא Aשאנחנו צריכים 3 חדרי שינה בקומת הקרקע[
המחסן יהפוך לחדר שינה ממ"ד (הוא כרגע בנוי מתחת לממ"ד שבקומה השנייה)
ותוספת של שני החדרים (מסומנת באדום) תהיה סמוכה לקיר הסלון עם יציאה משם (כרגע חלון פינת האוכל)
בהנחה שאנחנו חייבים פינת אוכל וגם פינת ישיבה במטבח(הכניסה לבית היא מכיוון המטבח)
האם:
העמדת המטבח הסלון ופינת האוכל טובים או שהיית ממליצה על העמדה שונה?

האם יש הערות קריטיות על תכנון שני החדרים (יחידת המקלחת בחדר הורים תהיה עם דלת הזזה מזכוכית)
תודה רבה
[image]

[image]

נעול
  1388 צפיות

עצות לגבי התכנון

ע"י דוד עמירם, 08-08-2014, 19:09 (לפני 4273 ימים) @ ימית

שלום רב,
1. במקלחת יחידת הורים, מיקום האסלה אינו נכון ואי אפשר יהיה לשבת באסלה ולאחר מיכן אי אפשר יהיה לבצע פעולות לאחר הישיבה. אני ממליץ על דלת הזזה וע"י כך אפשר יהיה להזיז את האסלה שמאלה על מנת להרחיקה מהקיר.

2. גודלו של חדר צריך להיות 8.0 מ"ר, פחות מכך הוא לא נחשב לחדר.
רוחב מינימלי לחדר, 2.70, כל חלק של חדר שרוחבו פחות מכך לא יחשב כחלק משטחו של החדר. יש צורך לבדוק את החדר העליון. בנוסף לכך, סידור המיטות בחדר העליון, לא נכון באופן קיצוני.

3. על מנת לכתוב על החלק האחר של הבית, אני צריך לראות את כל התכנית.

אשמח לקבל את כל המבט של התכנית ואף לדבר איתך בטלפון, ללא עלות מצידך.

תתקשרי אלי:
דוד עמירם,
נייד: 050-3383807

נעול
  1199 צפיות

ראשית תודה רבה!!!

ע"י אוחי, 10-08-2014, 13:41 (לפני 4271 ימים) @ דוד עמירם

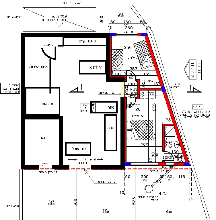
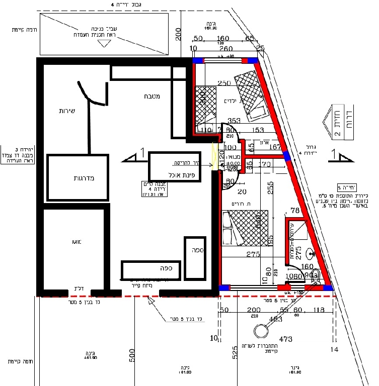
אבל אולי התמונות ימחישו את ההתלבטויות:

יש את התכנית עם שני חדרים בגודל מצוין אך ישנו קיר תמך ואנחנו לא מעוניינים להיכנס לזה.
יתרון נוסף שיהיו שירותים משותפים במסדרון.
וגם הארכה של קיר המטבח תיתן יתרון שפינת האוכל תהיה ביחידה של המטבח.

ויש את התכנית עם חדר אחד כנראה לא תיקני (אבל מספיק) והיתרונות :
1.שלא נשארים עם קיר תקוע/ התעסקות בקיר תמך
יחידת ההורים היא ממש אטרקטיבית
2.והעובדה שפינת האוכל מול הגינה הרבה יותר כיפית בארוחות משפחתיות

השאלה העיקרית האם החדר הקטן ניראה לנו מתאים אבל הוא ממש לא...?


תודה רבה!
והנה התמונות:
[image]
[image]

נעול
  1181 צפיות